IKC Nova
Rotterdam, NL
In enger Zusammenarbeit entwickeln die Stadt Rotterdam und SARO einen Ersatzneubau für das IKC Nova im Stadtteil Ommoord. Der Schulneubau ist Teil einer umfassenderen Gebietsentwicklung, bei der das Viertel eine grüne Metamorphose durchläuft. Eine zentrale Rolle spielt dabei die Umgestaltung der südlich gelegenen Straße zur sogenannten „Ommoordse Loop“ – einer neuen Parkachse, die sich als landschaftliches Rückgrat durch das Quartier zieht. Das von 9grad architektur entworfene Schulgebäude greift diese Entwicklung auf: Gebäude und Schulhof bilden zusammen einen starken räumlichen und sozialen Ankerpunkt im erneuerten Ommoord.
Klares Volumen, eingebettet in die Landschaft
Der Neubau präsentiert sich als kompakter, allseitig orientierter Baukörper in orthogonaler Struktur – in Anlehnung an die modernistische Stadtplanung des Viertels. Ein markanter Einschnitt in den Baukörper öffnet das Volumen zur Parkstruktur hin und schafft eine fließende Verbindung zwischen Innen und Außen. Der Park dehnt sich auf das Schulgelände aus und setzt sich bis in das Gebäudeinnere fort. Ein sanft herausgehobener Baukörper für die Sporthalle verleiht dem Ensemble eine dynamische Silhouette und macht IKC Nova zu einem zeitgemäßen Orientierungspunkt im Quartier – ein einladender und zukunftsweisender Lernort.
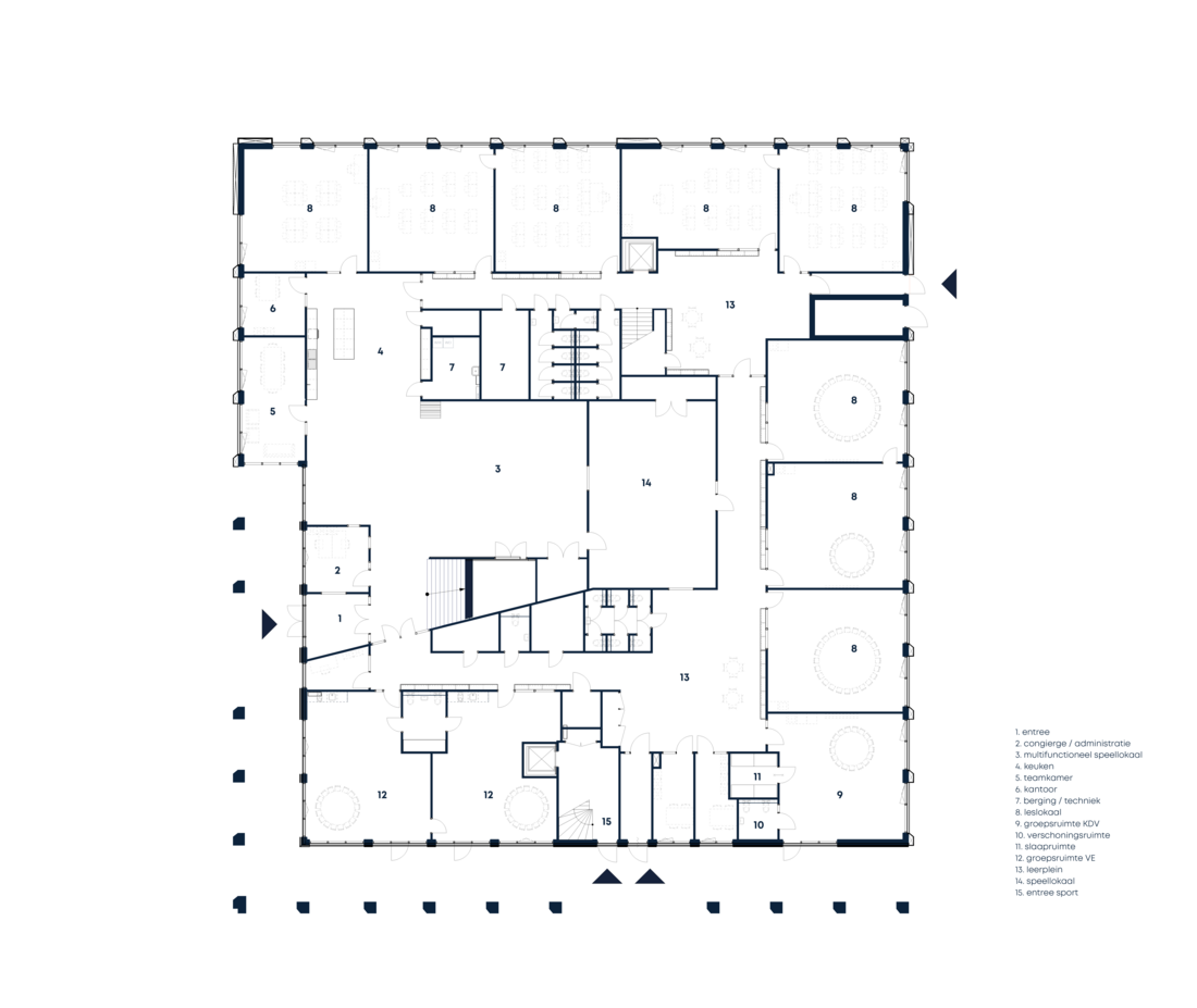
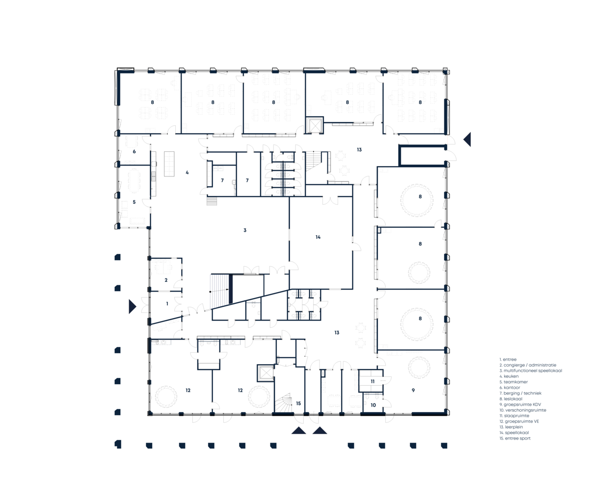
Inklusive Lernlandschaft
IKC Nova vereint regulären und sonderpädagogischen Grundschulunterricht unter einem Dach. Flexibilität, Übersichtlichkeit und Zugänglichkeit waren leitend für die architektonische Konzeption. Die Tragstruktur aus flexibel teilbaren und rückbaubaren Stützen ermöglicht eine hohe Anpassungsfähigkeit an zukünftige Unterrichtsformen und Gruppenzusammensetzungen. Das Raumprogramm umfasst unter anderem Besprechungsräume, multifunktionale Bereiche, einen „grünen Raum“ sowie spezifische Räume für das sonderpädagogische Lernen. Im Zentrum des Gebäudes liegt ein lebendiger Gemeinschaftsbereich mit Aula, Spielfluren und Eingangszone – ein vielseitig nutzbarer Ort für Feste, Elternabende und Veranstaltungen im Stadtteil.
Nachhaltigkeit in Material und Struktur
Gestalterisch nimmt das Gebäude Bezug auf die modernistische Architektursprache von Ommoord, erhält aber eine zeitgenössische Materialisierung. Die Fassaden folgen einem rhythmischen Raster und bestehen aus Bambuselementen – einem biobasierten, warm wirkenden Werkstoff mit haptischer Qualität. Ein robuster Sockel bildet das Fundament und knüpft subtil an die bestehende Nachbarbebauung an. Die Konstruktion verbindet Nachhaltigkeit und Flexibilität: Eine demontierbare Stahlstruktur mit Spannbetondecken sorgt dafür, dass das Gebäude zirkulär nutzbar und anpassungsfähig bleibt. Die Außenwände sind in Holzrahmenbauweise mit Holzfaserdämmung ausgeführt, was zur ökologischen Qualität beiträgt. Für die Regenwasserspeicherung dient ein extensives Gründach, während ein System mit Erdwärmenutzung und Wärmerückgewinnung die Beheizung des Gebäudes effizient unterstützt.
Status: in Planung, 2023–2026
Ort: Rotterdam, Niederlande
Auftraggeber: SARO
Fläche:3.796 m²



